Send an email with a link to
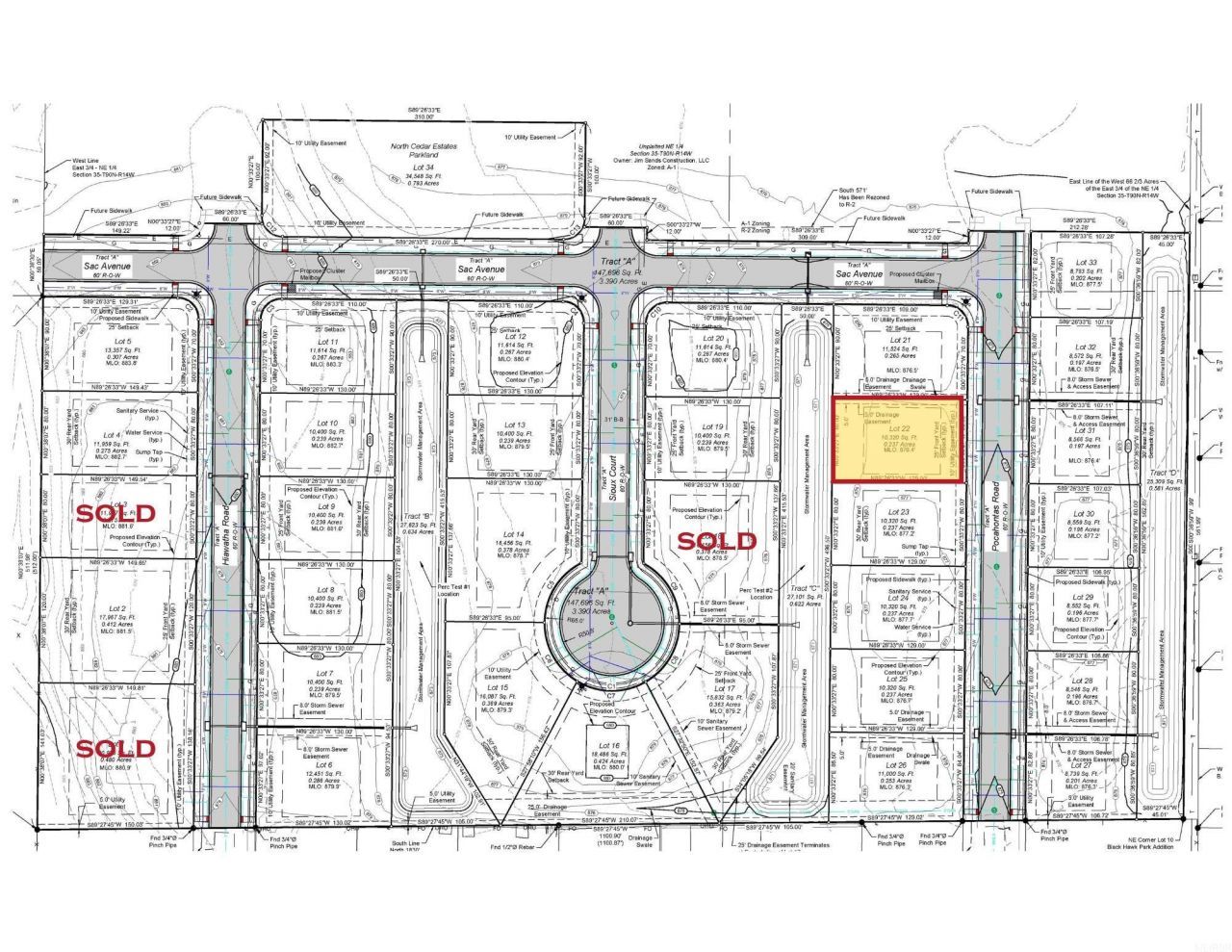
Lot 22 Pocahontas Road, Cedar Falls, IA 50613.
Construction is underway in this highly sought after North Cedar development. Get your offer in now and close when its build ready. Completion could be this Fall or next Spring. Bring your own builder or Sands Construction will build to suit. Ask for det
MLS ID: 20251720
For Details, Contact
Contact an agent to learn more about
Lot 22 Pocahontas Road, Cedar Falls, IA 50613.

Call or Click to get Pre-Approved!
563-441-1862
toll free 866-441-1862
Customize Your Rate
| Loan Type | 30 Year Fixed | FHA 30 Year Fixed | 15 Year Fixed |
| Purchase Price | $85,000 | $85,000 | $85,000 |
| Down Payment | $17,000 | $2,975 | $21,250 |
| Monthly Mortgage Amount | $397 | $500 | $517 |
| Taxes | $118 | $118 | $118 |
| Insurance | $100 | $100 | $100 |
| HOA/Dues/Fees | $0 | $0 | $0 |
| Monthly Mortage Insurance | $0 | $37 | $0 |
| Monthly Estimated Total | $615 | $755 | $735 |